Dar tal-Herba: Restoring a Corner Townhouse

At GT Group, each restoration project begins with a clear objective: to respect the existing structure while adapting it for modern living in a considered and durable way.

Our latest project in Birkirkara reflects this approach. Located within an Urban Conservation Area and overlooking the Church of St. Rocco, this corner townhouse brings together heritage restoration, architectural clarity, and contemporary spatial design.

Architect’s Design Narrative

Located in the heart of Birkirkara’s Urban Conservation Area Dar tal-Ħerba breathes new life into Triq tal-Ħerba. By reconnecting two former residences into a single dwelling, the project re-establishes a prominent corner house with an expansive façade overlooking the Church of St. Rocco. The intervention reinterprets the existing masonry walls to frame a central courtyard that forms the heart of the home.

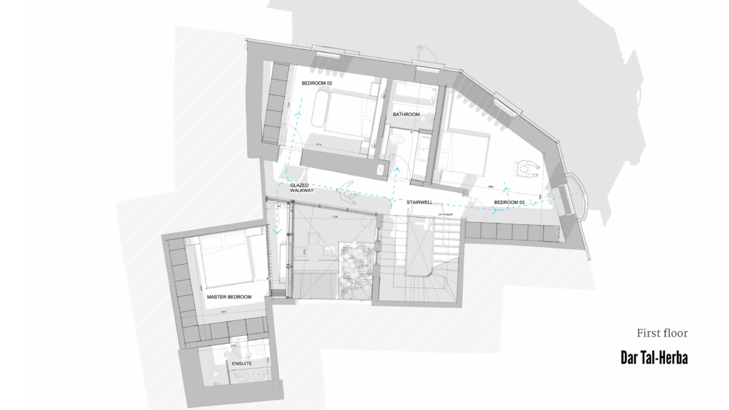
Overlooking this courtyard, a glazed walkway links the upper bedrooms, acting as both circulation and architectural focal point. The lightweight contemporary structure contrasts with the surrounding historic fabric, allowing the original stone walls to remain visually dominant while introducing generous natural light to the first floor.

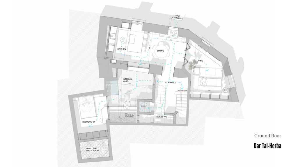
The ground floor accommodates the primary living spaces, including the living room, dining-kitchen, guest bathroom, and a bedroom. Both the dining-kitchen and bedroom open onto the internal courtyard, reinforcing the relationship between indoor and outdoor spaces. A traditional garigor is carefully retained, descending to a basement level that houses a wine cellar and an adjacent cinema room.

Ascending through the house, the stairwell culminates at roof level where the upper floor accommodates a laundry room, bathroom, and an outdoor kitchen, living, and dining area.

From this level, the house enjoys open views towards the Church of St. Rocco, strengthening the dwelling’s connection to its urban context.

A subtle thread of greenery is woven throughout the property, animating the courtyard and terraced spaced while introducing moments of pause within the domestic sequence. These planted spaces soften the architectural composition and create a series of intimate resting places within the home.

Through a careful balance of restoration and contemporary intervention, the project celebrates the character of the original structures while adapting them for modern living. The resulting home preserves the stories embedded within its walls while creating new spatial experiences for those who inhabit it.

Visualisation

The visualisations highlight the relationship between the restored masonry structure and the contemporary interventions, particularly the glazed walkway and courtyard-focused layout.

Floorplans and Spatial Layout

The floor plans illustrate how the project reorganises the internal layout around a central courtyard, improving circulation, natural light, and spatial clarity across all levels.

Project Outlook

As the project progresses into construction, the focus remains on disciplined execution and careful detailing. This is a project defined not by surface-level change, but by a structured approach to restoration that ensures long-term value.